
Roberta Molteni Studio Architecture – Design
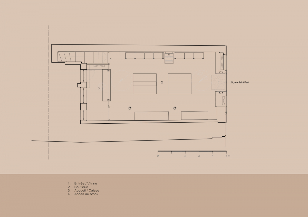
Toits Parisiens . 24 rue Saint Paul Paris IV . Boutique
2022
Specialized in the renovation and restoration of historic buildings and monuments, LA LOUISIANE SA, is a roofing & plumbing company founded in 1977 by Jean-Claude Venturini and now run by his son Cyril Venturini. They decided to highlight this living heritage by creating « Les Toits Parisiens».
Commisioned Roberta Molteni to create a space dedicated to Parisian roofs, with the idea to introduce people to the real work of roofing, the real work of wood, slate, zinc and lead, which remains almost unknown.
All the furniture has been made of solid oak : from the roof structure, partially covered in slate tiles, to the work tables and the displays.








