
Roberta Molteni Studio Architecture – Design
Appartement Pont aux Choux PARIS III
2025
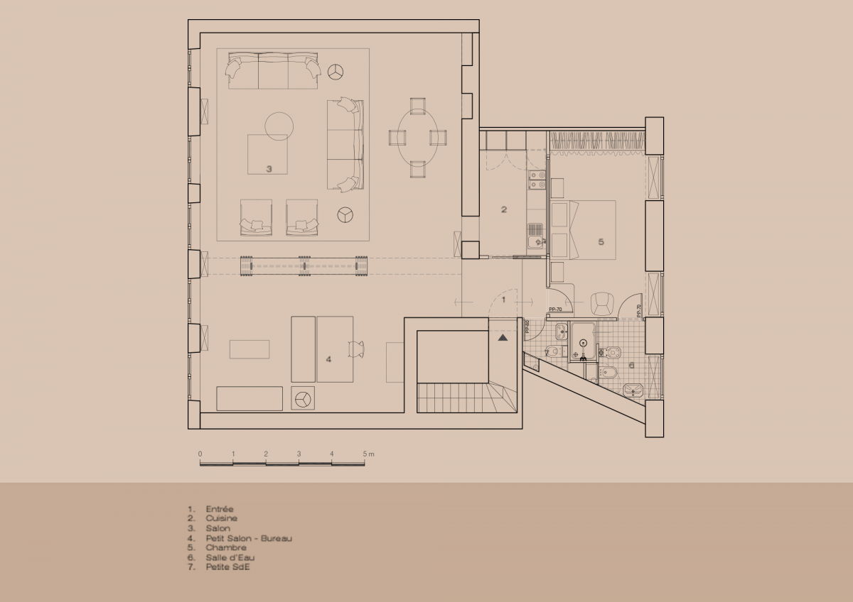
An artist’s studio is reborn as an intimate apartment, where light, space, and art converse. Custom-designed furnishings shape the interior, including a sculptural bookcase inspired by the lines of Charles Rennie Mackintosh’s furniture present in the apartment, which elegantly separates and organizes the living area.









