
Roberta Molteni Studio Architecture – Design
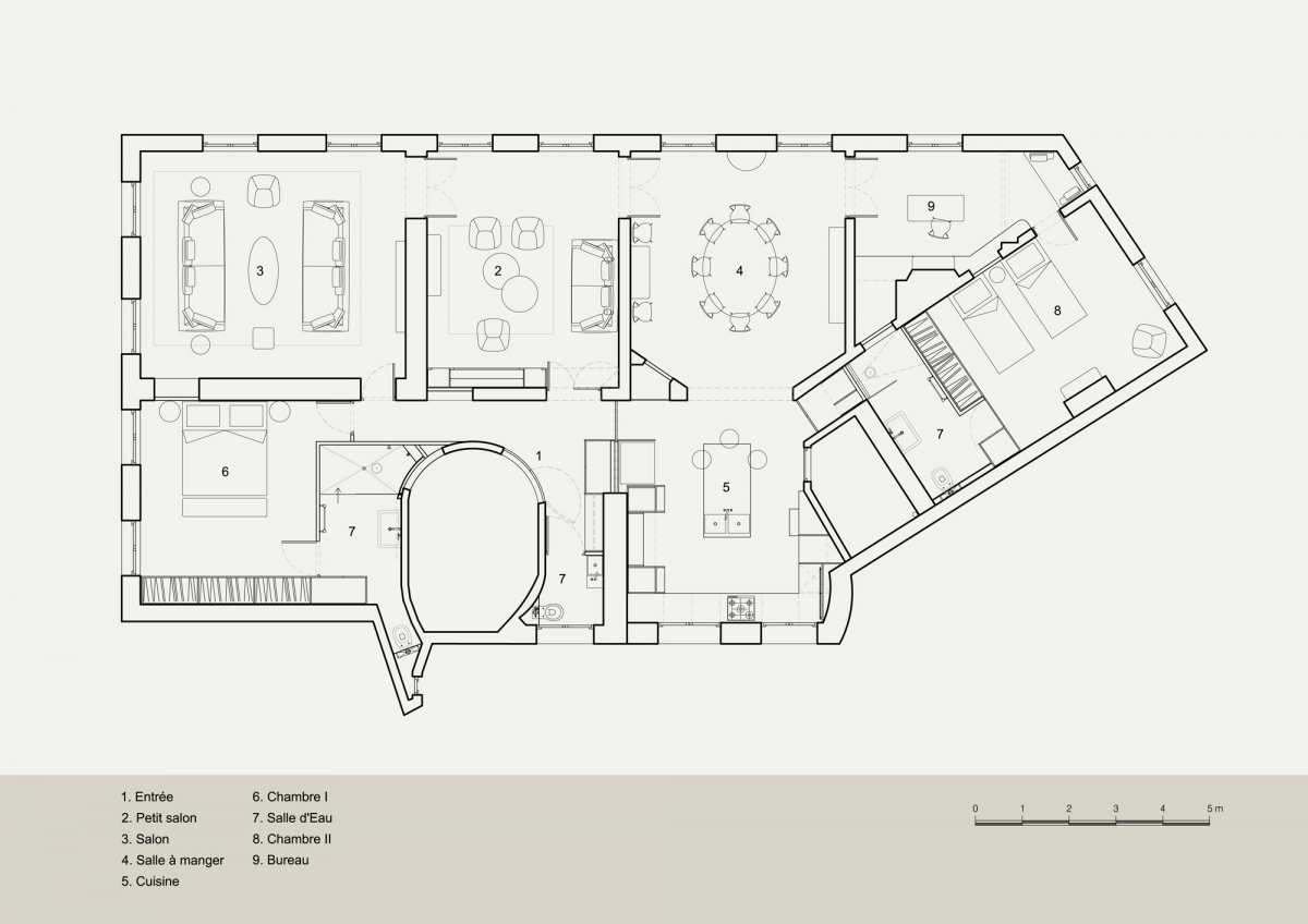
Appartement . rue Jacob Paris VI 160 m²
2019
PROJET RÉALISÉ. Conception et suivi de chantier. Réaménagement des espaces.
Design et réalisation de l’ensemble du mobilier fixe et non pour: petit salon, cuisine, bureau, chambres et salles des bains.
















